The Flager Home Plan
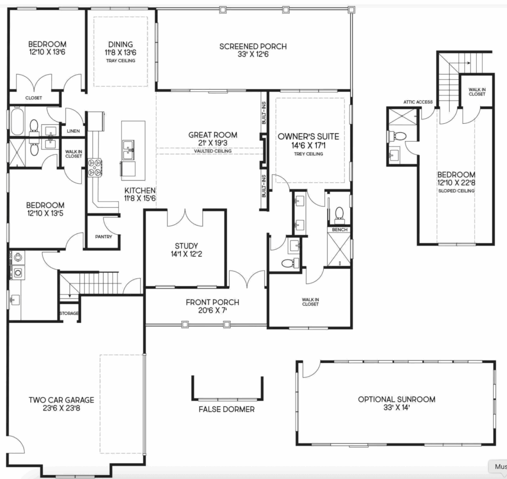
The Flagler floorplan by Kirk Pigford Homes, located in Faye’s Meadow at Mott’s Landing, provides 2,965 sq. ft. of well-designed living space featuring four bedrooms, 4.5 bathrooms, a study, and a two-car garage. The main floor centers around a spacious Great Room with vaulted ceilings, opening to a dining area and a kitchen with an island and pantry, ideal for family gatherings and entertaining. The Owner’s Suite offers a private retreat with a luxurious bathroom and walk-in closet. Two additional bedrooms on the main floor each have easy access to full bathrooms, providing comfort and privacy for family or guests. A dedicated study offers a quiet workspace at the front of the home.
A large screened porch extends the living space outdoors, with an optional sunroom available for added flexibility. Upstairs, a loft area and a fourth bedroom with a private bathroom offer additional space for relaxation or a guest suite. The two-car garage provides ample room for vehicles and storage. The Flagler floorplan combines functional living spaces with a stylish design, making it an ideal choice for families who value both comfort and elegance.

Contact Us Today!
"*" indicates required fields

